-->

NYPL unveiled designs for its brand new Roosevelt Island Branch

January 14, 2016
NYPL unveiled designs for its brand new Roosevelt Island Branch 
© Smith-Miller + Hawkinson Architects
New York Public Library ǀRoosevelt Island ǀSmith-Miller + Hawkinson Architects LLP
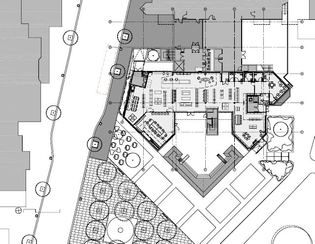
The New York Public Library unveiled designs for its brand new Roosevelt Island Branch, featuring a playground, outdoor stadium seating and a large community room. The branch currently runs out of a small space at 524 Main St., but once its new home down the road at 504 Main St. is complete in fall 2017, the library will triple in size and be big enough to have a separate alcove for kids and space to hold larger community events for the first time, according to an NYPL spokeswoman. Renderings after the link.


0 comments:

Post a Comment